Baugrundstücke in Hermannsburg
Ein Ort für individuelle Träume
13.12.2022
Wer lange genug in der Baubranche tätig ist, erwirbt sich alle Kompetenzen und Netzwerke, um auch in Eigenregie Projekte verwirklichen zu können. Diese einfache Erkenntnis stand am Anfang eines Plans von Jörg Schellworth und Patrick Marr, sich künftig auch als Entwickler und Vermarkter im Immobiliensektor zu betätigen. Und dieser Plan trägt bereits erste Früchte: Aktuell können die beiden attraktive Baugrundstücke in bester Lage in Hermannsburg anbieten.
Branchenerfahrung bringt das Duo im Übermaß mit: Jörg Schellworth arbeitet seit vielen Jahren als Handelsvertreter für Holz- und Bautenschutzmittel und ist Inhaber des Remmers-Shop Celle. Mit seinem Team, zu dem auch Patrick Marr gehört, betreut er einen weiten Kreis von rund 1.200 Kunden und ist bestens vertraut mit regionalen Bauunternehmen und handwerklichen Gewerken.
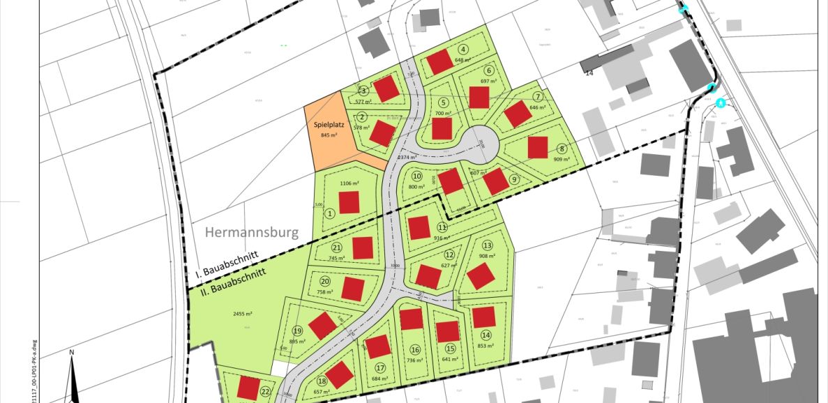
Ein echter Glücksfall führt nun zu einer Art Traumstart im Bereich Projektentwicklung. Durch partnerschaftliche, erfolgreiche Verhandlungen mit der Vorbesitzerin, konnten Schellworth und Marr den zweiten Bauabschnitt Baarwiesen in Hermannsburg erwerben und übernehmen nun die Vermarktung der hier entstehenden Grundstücke, deren Erschließung im Frühling 2023 beginnen wird. Exzellent ist die Lage: Sie verbindet naturnahe Ruhe und unmttelbare zum Ortskern, der sich von hier aus ganz bequem zu Fuß erreichen lässt.
Ein echter Vorteil für Interessierte ist die Flexibilität, auf die sie hier stoßen. „Der genaue Zuschnitt der Grundstücke steht noch nicht fest“, sagt Jörg Schellworth, „das heißt: Wer hier zuerst kommt, bekommt exakt, was er sich wünscht, also die Grundstücksgröße, die ideal zu seinem Bauvorhaben passt. Das Prinzip lautet: Ein Anruf genügt, und wir besprechen persönlich, wie hier individuelle Träume wahr werden.“
Diese individuelle Freiheit gilt weitesgehend auch für die spätere Bebauung, die durch erfreulich wenige Vorgaben eingeschränkt ist. So ist beispielsweise bei weitem nicht für jedes Baugebiet selbstverständlich, dass künftige Bauherren die Wahl zwischen ein- und zweigeschossigen Gebäuden haben, wie es hier in Hermannsburg der Fall ist.
Wer sich hier seinen Wunsch auf eigene vier Wände verwirklicht, genießt in der Zusammenarbeit mit Jörg Schellworth und Patrick Marr einen weiteren Vorteil: Durch die langjährige Arbeit in der Baubranche, verfügen die beiden über eine hervorragende Kenntnis regionaler Partner, mit denen Neubauprojekte zuverlässig realisiert werden und Abnehmerinnen und Abnehmern von Grundstücken entsprechende Empfehlungen geben können.
Warum heutzutage bauen?
Auch auf eine andere aktuelle Frage haben die beiden eine Reihe von Antworten parat: Warum ist es sinnvoll, in Zeiten der Krisen ein Neubauprojekt anzugehen? Zusammengefasst lässt sich sagen: Weil eigene Immobilien trotzdem Zukunft haben!
Dafür spricht in allererster Linie die erwartbare Wertentwicklung von Immobilien. Sie bietet im Gegensatz zu anderen Anlagemärkten wie zum Beispiel Aktien sichere Perspektiven, vor allem, wenn Lage und Qualität stimmen. Die Lage ist in diesem Fall 1A, und die Qualität muss den Vergleich zu erlesenen Altbauwohnungen kaum scheuen, weil man bei Neubauten automatisch haustechnische Standards auf Höhe der Zeit verwirklicht.
Ein Einwand könnte in den drastisch gestiegenen Kosten für Materialien und handwerkliche Dienstleistungen bzw. in der Verfügbarkeit von Gewerken liegen. Auch hier gibt Jörg Schellworth Entwarnung: „Im Materialbereich beruhigen sich die Preise gerade wieder, und die inflationsbedingt sinkende Nachfrage wird dazu führen, dass auch die nötigen Handwerksarbeiten wieder einfacher zu bekommen sind.“
Der wichtigste Grund für das Eigenheim ist und bleibt aber die Unabhängigkeit. Man hängt nicht mehr an steigenden Mieten oder unsicheren Energiekosten, wenn man im eigenen Zuhause mit autarker Energieversorgung wohnt.
Jörg Schellworth und Partick Marr freuen sich darauf, Interessierten einen Grund zum Bauen zu geben – und ein Grundstück gleich dazu.
---
Die an diesem Objekt beteiligten Firmen empfehlen sich
Schellworth & Marr
Weitere Bauvorhaben dieser Ausgabe
Dies könnte Sie auch interessieren
Alle Themen











