Glanzvolle Rückkehr des Bungalows
Smart, naturverbunden, großzügig und energieeffizient präsentieren sich die neuen Flachbauten
31.07.2023
      epr/Wolf-Haus
      epr/Wolf-Haus
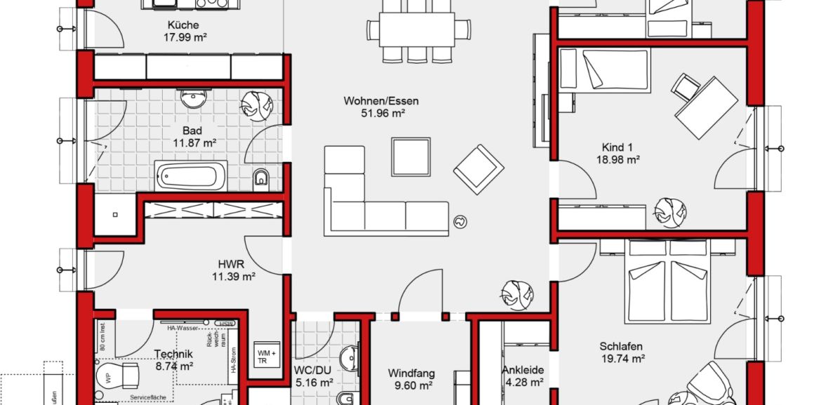
(epr) Der Bungalow erlebt eine glanzvolle Rückkehr und erobert erneut die Herzen von Architektur- und Immobilienbegeisterten. Das einst beliebte Wohnkonzept auf einer Ebene gewinnt wieder an Popularität und wird als zeitgemäße Lösung gefeiert – und das nicht nur im Alter. Auch für Familien lassen sich im Bungalow großzügige und smarte Wohnkonzepte umsetzen.
Keine Treppen, keine Hindernisse – nur einladende Räume, die maximale Bewegungsfreiheit bieten. Wolf-Haus hat in seinem Sortiment vielfältige Varianten des beliebten Flachbaus mit Wohnflächen von 98 bis 205 Quadratmetern. Der geradlinige Aufbau des Bungalows garantiert eine praktische Raumgestaltung, bei der jeder Quadratmeter optimal genutzt wird. Mit großzügigen Wohnbereichen, gemütlichen Schlafzimmern und funktionalen Bädern wird so eine Wohnumgebung geschaffen, die sich den Bedürfnissen der Bewohner anpasst. Ein weiteres Highlight ist die Verbindung zur Natur. Durch bodentiefe Fenster gelangen nicht nur viel Tageslicht und frische Luft ins Haus, sondern sie schaffen auch eine harmonische Verbindung zum umgebenden Garten. Neben Komfort und Flexibilität bieten die Bungalows von Wolf-Haus ihren Besitzern auch eine nachhaltige Energieversorgung. Mit einer effizienten Wärmepumpenheizung herrschen angenehme Temperaturen bei gleichzeitiger Reduktion der Energiekosten. Damit ist der Flachbau fit für die Heizungsgesetzgebung. So können sich die Bewohner umweltbewusst und energieeffizient auf die Zukunft in ihrem Bungalow freuen. Egal, in welchem Lebensabschnitt sich Häuslebauer befinden – ein Bungalow bietet immer die perfekte Wohnlösung und erfüllt den Traum von einem praktischen wie komfortablen Zuhause.
Weitere Infos unter www.wolf-haus.de.
Die an diesem Objekt beteiligten Firmen empfehlen sich
    Wolf-Haus GmbH
Weitere Berichte aus der Kategorie
Dies könnte Sie auch interessieren
Alle Themen





						
						
						
						
    


 
 
 
	
